Calor SZB 80 Bálaégető vegyestüzelésű kazán 80 kW

Kérjük ellenőrizze később az elérhetőséget, köszönjük!
Kapcsolódó termékek
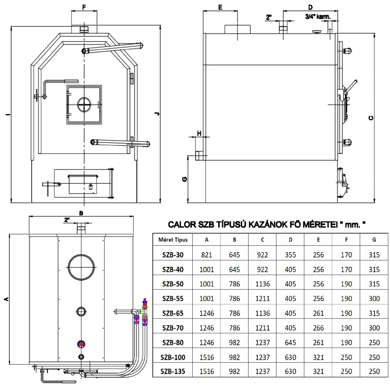
Calor SZB 80 adatlap és méretek
|
Típus |
Calor SZB80 |
|
|
Névleges hőteljesítmény |
kW |
80 |
|
E (füstcső átmérő) |
mm |
190 |
|
F (elm.-es visszatérőcsonk) |
" |
2 |
|
Tűztér hossza |
mm |
1100 |
|
-szélessége |
mm |
540 |
|
-magassága |
mm |
430 |
|
Fűtőfelület: |
W |
8 |
|
Víztérfogat |
l |
240 |
|
Tömeg |
kg |
480 |
|
Huzatigény |
Pa |
20-25 |
Calor SZB 80 letölthető dokumentumok
Gyártói adatok
A Calor 2000 Tüzeléstechnikai Kft. 9155 Lébény, Dózsa György út 111. +36 96/564-045; 30/204-6676 www.calor2000.hu
Leírás
A Calor SZB 80 80 Kw-os bálaégető vegyestüzelésű kazánt családi házak, üzemcsarnokok, ipari- és mezőgazdasági létesítmények fűtésére ajánljuk.
Előnyei:
A kazánnak nagyméretű tűztere van. Lényegesen kevesebb, vagy egyáltalán nem igényel előkészítést a fűtőanyag.
A tűztérajtó teljes keresztmetszetben nyílik, ezáltal könnyen táplálható és tisztítható akazán.
Az ajtóban és a rostélycsövekben víz cirkulál, ami a kiégést megakadályozza.
Tüzelőanyagai:
"nem fás biomassza": a fás biomasszától különböző biomassza, beleértve egyebek mellett a szalmát, a nádat és más fűféléket, gyümölcs- és más növényi magvakat, az olívamagot, az olívapogácsát és a dióhéjat.
Fontos tudni, hogy a kiméretű bála csak a Calor SZB-50 vagy annál nagyobb teljesítményű típusokba fér bele.
A kazánok tűztere 5 mm vastagságú acéllemezből készül.
SZB 30- SZB 40 kW-os kazánokba csak bontva fér bele a szalmabála.
Eltérés esetén minden esetben a gyártó által megadott paraméterek érvényesek. (ÁSzF 5.7.2.)